Artist’s Villa

South Kensington, London

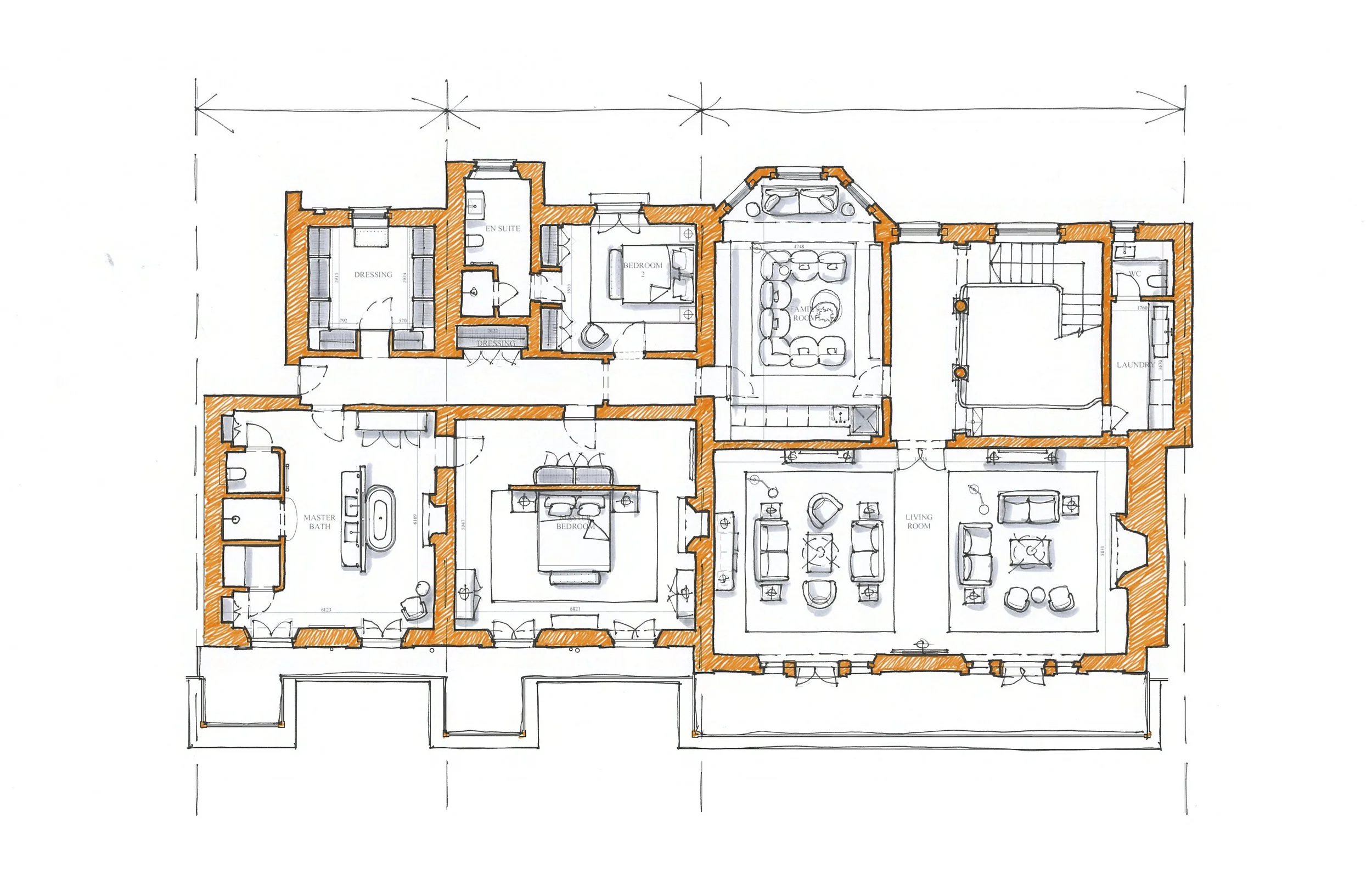
This Grade II listed villa has been conceived as an “oasis” in a very urban and busy city. The unexpected volumes and classical architectural elements with a contemporary twist, create moments of awe and inspiration, where every vista provides an opportunity to admire. The scheme creates a feeling of serenity, with floods of light, greenery and amplitude underscoring the designs.

(design in Progress)

Architecture: Archiphilic Interior Design: Gunter & Co.

Previous
Previous

Black and White House

Next
Next

Gatton Residences